Главная
/ Франция / Валь д`Изер (Val d`Isere) / Отель Шале класса люкс №2 5*
Шале класса люкс №2 5*
Описание отеля Шале класса люкс №2 5* ()
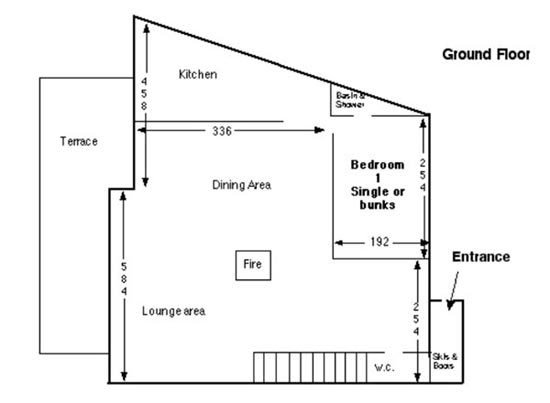
Уютное шале на 10 персон, 5 спален. Недавно отреставрированное шале (неотдельное) с прекрасным видом на горы Бельвард и Солес, долину Манше, предложит вам столовую, гостиную с камином в центре комнаты, просторную террасу, кухню открытого плана, 5 спален и 5 ванных/душевых комнат.Расположение шале: в 15 минутах ходьбы до центра Вальдизера или в паре минутах езды на такси. Всего 150 метров отделяет вас от дороги к спускам Солейс и подъемникам. Более опытные лыжники и сноубордисты смогут доехать примерно на 100 метров до шале, а менее опытным придется пройти пешком примерно 200 метров до шале от трассы
В шале:
B шале к Вашим услугам:
Описание номеров отеля Шале класса люкс №2 5* ()
Видео из отеля Шале класса люкс №2 5*
Экскурсионные туры из отеля Шале класса люкс №2 5* ()
Экскурсионные туры > Франция| Туров по данной стране: 5 Всего туров: 351 |
Погода отель Шале класса люкс №2 5* ()
Цены на туры в отель Шале класса люкс №2 5*()
Бронируйте туры онлайн в отель Шале класса люкс №2. Лучшие цены на туры в отель .Cпецпредложения на туры в отель Шале класса люкс №2
Спецпредложения на туры в отель Шале класса люкс №2. Горящие туры в Валь д`Изер (Val d`Isere),Отзывы об отеле Шале класса люкс №2 5* ()
В этом разделе вы найдете отзывы об отеле Шале класса люкс №2 5* (). Рассказы туристов о отдыхе в этом отеле, их оценки качества отдыха.
|
Добавить Ваш отзыв об этом отеле |









